-
河北省《农村住宅标准设计图集》(冀北分册)
《农村住宅标准设计图集》(共5分册,图集目录及编号见附件)已通过审查,现批准为河北省工程建设标准设计,自2020年11月1日起实行。 河北省住房和城乡建设厅- 120
- 0
-
河北省《装配式农房户型选集》
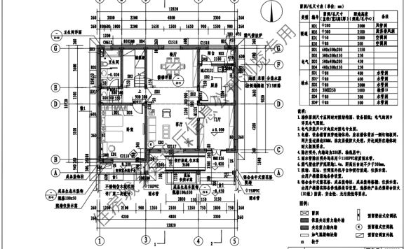
《装配式农房户型选集》(PDF版全文可下载)结合我省不同区域建筑风貌、民俗特色、生活习惯、宅基地规模(3分、4分地)等设计要素,编制了16套优秀户型供农村自建房选用,主要内容包括房屋院落布局、平面功能布局、水暖电等设计,基本满足农民建房户型需求。- 71
- 0
-
河北省《农村住宅标准设计图集》(冀东分册)
《农村住宅标准设计图集》(共5分册,图集目录及编号见附件)已通过审查,现批准为河北省工程建设标准设计,自2020年11月1日起实行。 附件:《农村住宅标准设计图集》目录及编号 河北省住房和城乡建设厅 2020年8月31日- 82
- 0
❯
搜索
扫码打开当前页
返回顶部
幸运之星正在降临...
点击领取今天的签到奖励!
恭喜!您今天获得了{{mission.data.mission.credit}}积分
我的优惠劵
-
¥优惠劵使用时效:无法使用使用时效:
之前
使用时效:永久有效优惠劵ID:×
没有优惠劵可用!




